Architectural Floor Plans
Architectural precision meets mountain landscape in a carefully crafted residential design that breathes with the terrain of Breckenridge

Main Level Floor Plan
Open plan entertainment and living spaces frame stunning views of the Ten Mile Range and the Breck-Frisco valley. Finishes throughout are tactile and timeless: hardwood and stone tile floors, white walls that change color with the shifting Colorado sky, hemlock ceilings, and cabinetry in rift-sawn oak, steel, and walnut. Lighting is discreet, color-tuned LED; fixtures are solid and elemental. Appliances are top-tier, selected for performance, durability, and elegance.

Upper Level Floor Plan
Perched above the main living spaces, the upper-level bedrooms at Tin Cup Residence offer a serene retreat—wrapped in mountain views and bathed in the soft glow of morning light. Each bedroom is positioned to greet the morning sun through native pines, with the master suite cantilevered toward Peak 5—evoking the serenity of a private treehouse.

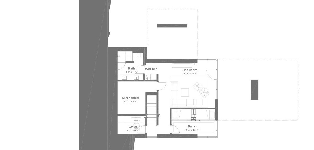
Lower Level Floor Plan
A pool hall, a lounge, or home theater--or anything in between--where you can walk directly outdoors to enjoy a coffee on your morning terrace or enjoy a soak in your spa after a day hitting the slopes.

Site Plan
Tucked against the pristine edge of the White River National Forest, in a quiet enclave near Peak7, 96 Tin Cup Circle redefines mountain modern luxury.

96 Tin Cup in Pictures
Explore the complete architectural vision through our detailed renderings and discover the essence of modern mountain living. Explore the intricate details of a residence designed to harmonize with the rugged beauty of Breckenridge